【
売家
】 自然に包まれて、暮らしやすさも手に入る家/石岡市加生野
【建物南側】
◯
【駐車スペース・勝手口】
【リビング】
◯
【カウンターキッチン】
【トイレ】
【勝手口】
【2F洋室】
【2F洋室2】
【2Fバルコニー】
【2FWIC】
【庭からの景色】
【庭の様子】
【庭の様子2】
【道路側の様子】
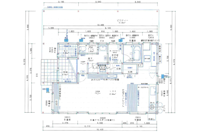
【設計図面1F】
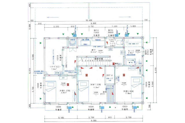
【設計図面2F】
所在地
石岡市加生野
販売価格
2,800万円
土地面積
宅地:392.69u(118.78坪)
畑:142u(42.95坪)
取引形態
媒介
建物面積
居宅:1F・59.20u/ 2F・53.82u
構造
木造瓦葺2階建
地目
区域区分
非線引き
用途地域
指定なし
建築年数
平成29年
建ぺい率
60%
容積率
200%
電気
飲用水
市営水道
トイレ
ガス
雑排水
浄化槽
接道状況
付随建物
備考
茨城県立石岡特別支援学校学校まで、約300m
朝日トンネル入口まで、約41.km
常磐線石岡駅まで、約11.9km
◎家具を置かないようデザインされ、完結された生活動線のある家です。
◎一年中、家の中が丁度いい、マシュマロ断熱の快適な住まい。
※現在居住中のため、直接のご来訪はご遠慮いただいております。内見をご希望の際は弊社までご一報ください。
【建物南側】
◯
【駐車スペース・勝手口】
【リビング】
◯
【カウンターキッチン】
【トイレ】
【勝手口】
【2F洋室】
【2F洋室2】
【2Fバルコニー】
【2FWIC】
【庭からの景色】
【庭の様子】
【庭の様子2】
【道路側の様子】
【設計図面1F】
【設計図面2F】
畑:142u(42.95坪)
朝日トンネル入口まで、約41.km
常磐線石岡駅まで、約11.9km
◎家具を置かないようデザインされ、完結された生活動線のある家です。
◎一年中、家の中が丁度いい、マシュマロ断熱の快適な住まい。
※現在居住中のため、直接のご来訪はご遠慮いただいております。内見をご希望の際は弊社までご一報ください。